Apskati, iedvesmojies un piesaki savu māju atjaunošanai!
2026-02-23
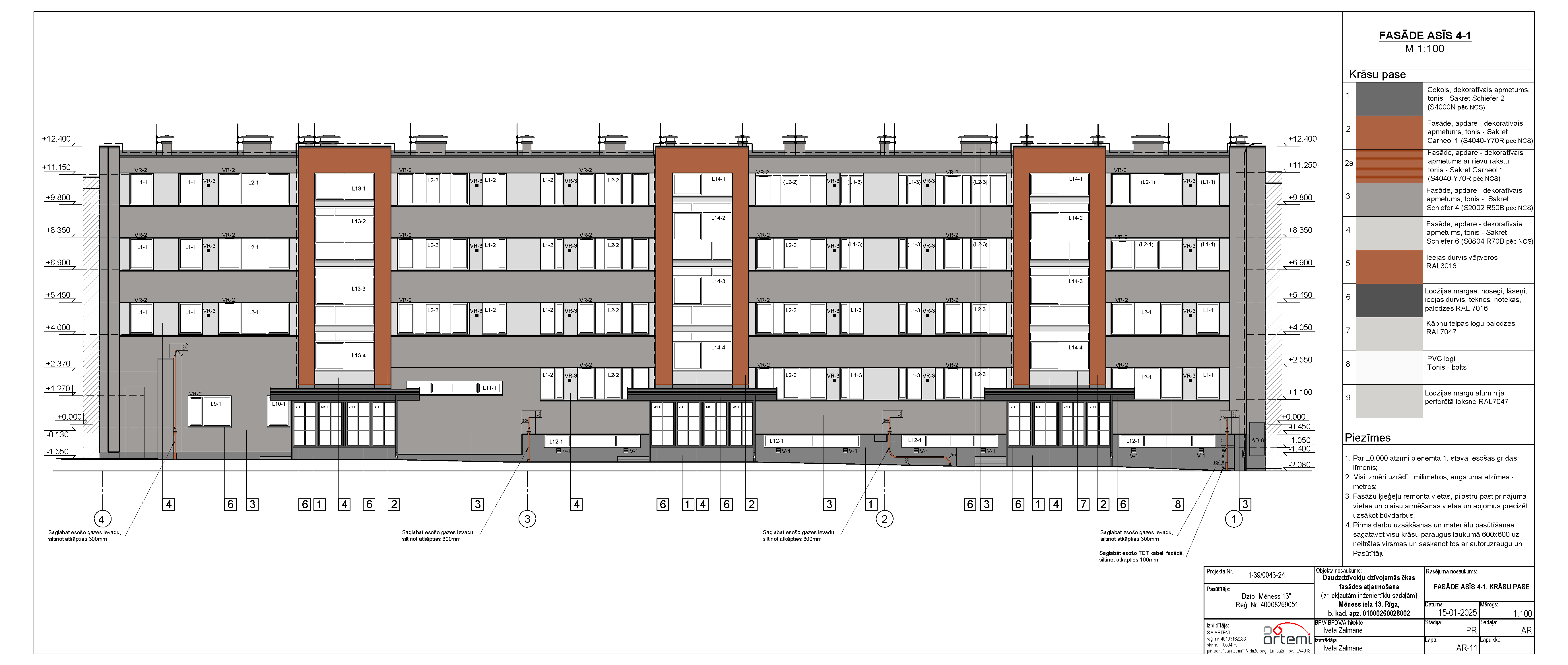
2026. gada marta sākumā tiks uzsākti renovācijas darbi namā Mēness ielā 13, Rīgas centrā.
Četrstāvu dzīvojamā māja celta 1979. gadā, un tajā ir 23 dzīvokļi. Renovācijas laikā ēka iegūs ne tikai atjaunotu vizuālo izskatu, bet arī nozīmīgus tehniskos uzlabojumus, kas nodrošinās komfortablāku, drošāku un ekonomiskāku dzīvi mājas iedzīvotājiem. Darbus plānots pabeigt līdz 24.02.2027.


Apskati, iedvesmojies un piesaki savu māju atjaunošanai!
Ielūkojies aktuālajos būvdarbos